VENTE Appartement T4 Cannes (06400)

Vente / Appartement T4 / Alpes-Maritimes

Cannes (06400)
Prix : 340 000 € / Honoraires à la charge du vendeur

Réf : 1934 / 725772 Mise à jour le 20/12/2025

Descriptif

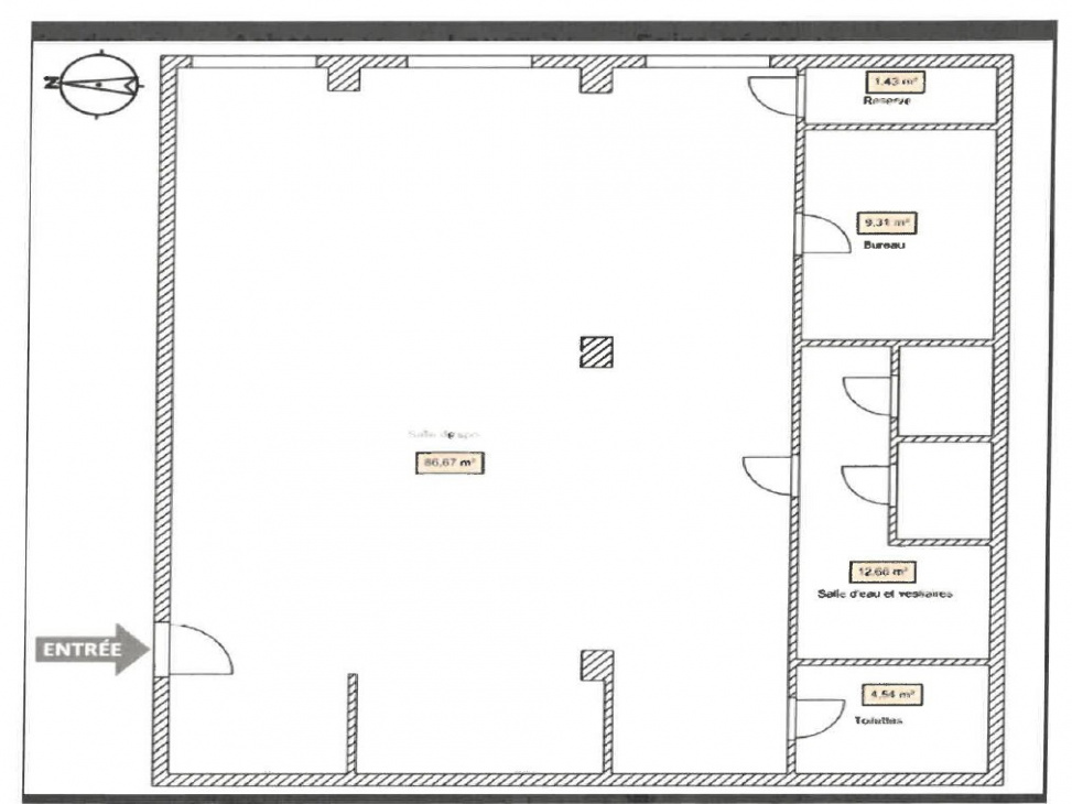
APPART / LOFT / BUREAU 120 m2 A VENDRE
33 boulevard Carnot 06400 CANNES

Bien atypique à voir absolument situés au premier étage de l'immeuble, climatisés d'une surface approximative de 118 m2.

Anciennement une école de Pole dance, et ensuite une salle de Taek-wendo.

Exclusion dans le règlement d'activité sportive, métier de bouche, commerces de nuit, associations, et établisssement ouvert le dimanche.

Parking public à proximité des bureaux.

BAIL PROFESSIONNEL - COMMERCIAL - OU DEROGATOIRE possible
Pas de procédure en cours, nombre de co-propriétaire 23
Taxe foncière 1200€/an, LOT 84
Charges annuelles d'un montant de .....

Idéal pour un investissement locatif.

Local géré par CENTURY 21 CCE
Entreprise et commerce
Tél : 04.93.68.68.69

La présente annonce a été rédigée par votre conseiller Steeve DURAND et reste à votre disposition .
Retrouvez tous nos biens entreprise et commerce sur notre site internet:
www.century21cce.fr
Parlons de vous, Parlons Biens

Ref : 59708988

* Honoraires Agence Inclus

  • Surface : 118  m²
  • Mandataire : Steeve DURAND

Contactez l’agence

CCE ENTREPRISE & COMMERCE

93 Boulevard Carnot

06400 Cannes (France)

 

Tél. : 04.93.68.68.69